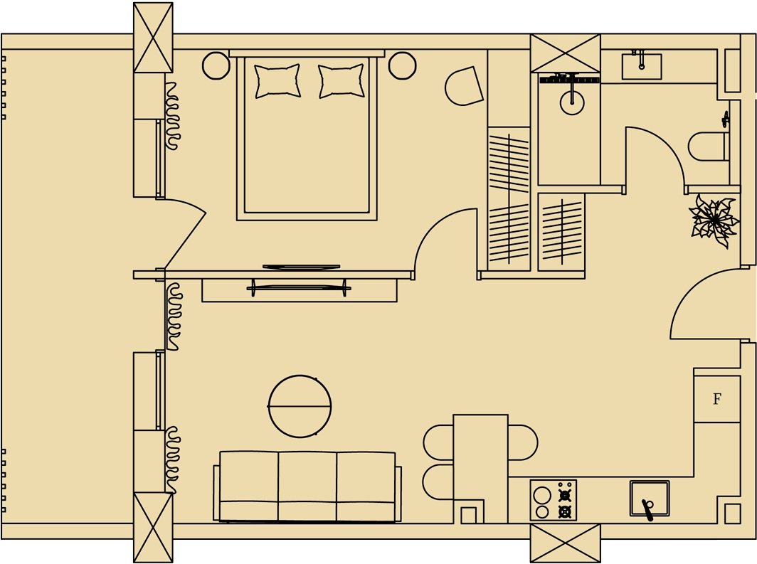
ბინა 161

This guide examines industries and career paths for architecturegraduates, as well as resources that can help professionals.

ბინის ნომერი

ბინა 161

სართული

19

ბინის ნომერი

ბინა 161

სართული

19

(5)
126 (3)

საერთო ფართი

55.5 მ²

ჰოლი

5.4 მ²

საერთო ოთახი

14.3 მ²

სამზარეულო

7.4 მ²

საძინებელი

14.6 მ²

სან.კვანძი

3.3 მ²

აივანი

10.5 მ²

საერთო ფართი

ჰოლი

55.5 მ²

5.4 მ²

საერთო ოთახი

სამზარეულო

14.3 მ²

7.4 მ²

საძინებელი

14.6 მ²

სან.კვანძი

აივანი

3.3 მ²

10.5 მ²

ჩვენ მზად ვართ სანდო თანამშრომლობისთვის

    Prev
    Next